Architect and Tiler Resources
Appraisal Sheets

TANZ Apprasial
View PDFCouncil Forms

AC2317 — Application to become a producer statement author
View PDF
AC2314 Producer statement construction (PS3) Waterproofing
View PDF
AC2131 Application for on-site minor variations of approved plans
View PDF
Technokolla Certification
View PDFGuides & Case Studies

Rasolastik EVO Case Study
View PDF
FILA W68 Concrete Sealing Guide
View PDF
Rasolastik/Rasogum Shower Example
View PDF
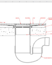
Allproof Concrete Cross Section
View PDF
Allproof Timber Cross Section
View PDFOther Documents
